ZpětÚvodReality Praha-západRodinné domy Praha-západProdej rodinné domy Praha-západProdej samostatné rodinné domy Praha-západProdej objektů k rekonstrukci ZP 340 m2, pozemek 690 m2, Vlavská, Roztoky
Prodej objektů k rekonstrukci ZP 340 m2, pozemek 690 m2, Vlavská, Roztoky
Záložky
Exkluzivně nabízíme k prodeji
Popis nemovitosti
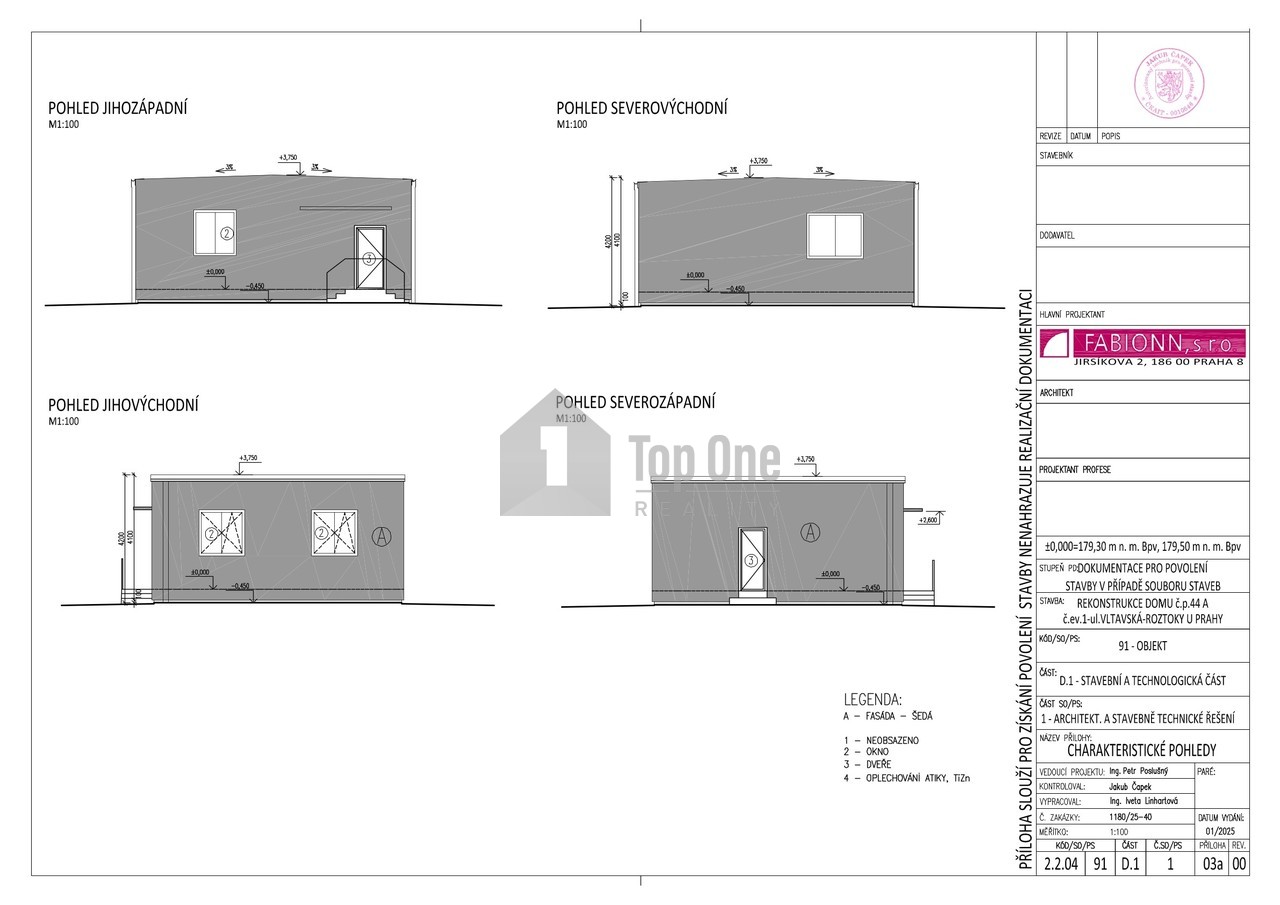
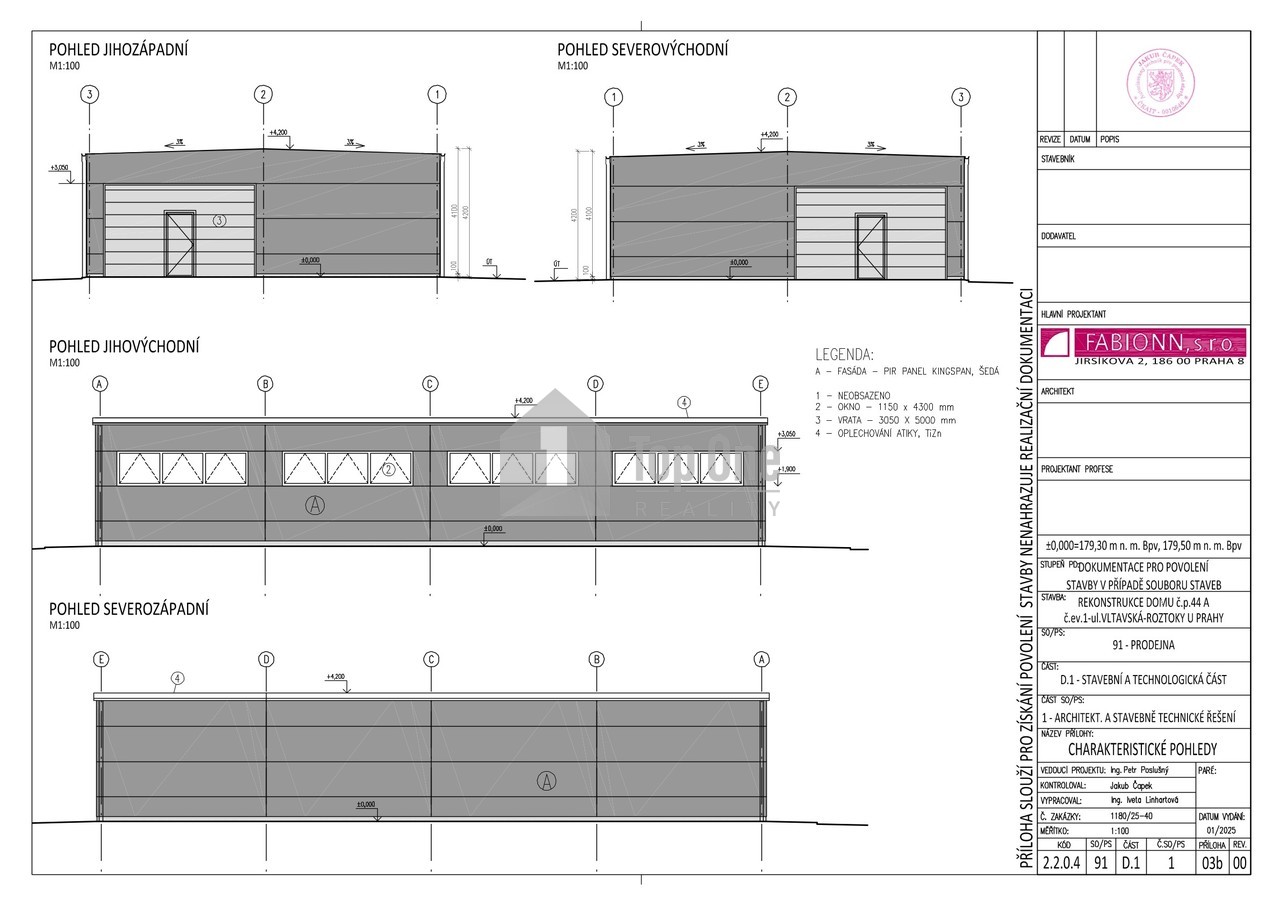
soubor objektů, které jsou umístěny na pozemku o celkové rozloze 690 m2 ke komplexní rekonstrukci se zpracovanou kompletní projektovou dokumentací a vydaným stavebním povolením, který se nachází v ulici Vltavská v dolní části Roztok, okres Praha-západ.
Po rekonstrukci vznikne přízemní nepodsklepe...
Cena: | 13.990.000 Kč(za nemovitost)včetně provize a právního servisu |
---|---|
Lokalita: | Roztoky, Praha-západ, Středočeský |
Stav nabídky: | aktuální |
Číslo: | 3561 |
Typ reality: | Samostatné rodinné domy - Rodinné domy |
Plocha: | 690 m2 |
Kontakt na makléře
Mgr. Josef Žáček Ředitel společnosti
+420725738437
+420725738437
Vlastnosti nemovitosti
Užitná plocha: | 290 m2 |
---|---|
Zastavěná plocha: | 330 m2 |
Plocha pozemku: | 690 |
Technologie výstavby: | smíšená |
---|---|
Stav objektu: | před rekonstrukcí |
Poloha objektu: | samostatný |
Umístění objektu: | kraj obce |
Celkový počet podlaží: | 1 |
Sklep: | Ne |
---|
Plyn: | Ano |
---|---|
Elektro 230V: | Ano |
Elektro 400V: | Ano |
Vodovod: | Ano |
Kanalizace: | Ano |
Internet: | Ano |
---|
Železnice: | Ano |
---|---|
MHD: | Ano |
Školka: | Ano |
Škola: | Ano |
Lékař: | Ano |
Pošta: | Ano |
Obchody: | Ano |
Supermarket: | Ano |
Služby: | Ano |
Třída energetické náročnosti budovy: | G - Mimořádně nehospodárná |
---|
Doplňující obsah
Vyhledávání nemovitostí
Kontaktujte nás
Mobil: 725 738 437
Email: info@toponereality.cz
© 2025, toponereality.cz – všechna práva vyhrazena
Prohlášení o přístupnosti | Ochrana osobních údajů | Mapa stránek
Realitní software dodává eBRÁNA s.r.o. | Software a informační systém pro realitní kanceláře Profesionální CMS | Nabídka nemovitostí RB Reality